Delen
Deel dit product
Je beoordeling toevoegen
Beoordeel Toilet met Troonzitting en hooghang systeem

Toilet met Troonzitting en hooghang systeem

€4.250,00
Toilet met hoog hangende stortbak en troonzitting, replica van antiek model, gedecoreerd toilet van het merk Thomas Crapper.
op bestelling
Beschrijving

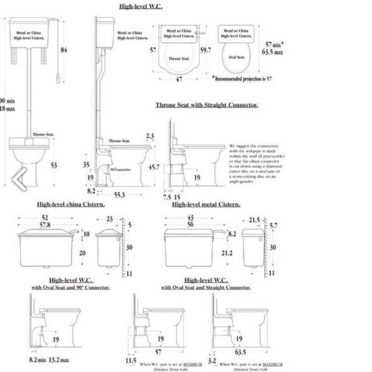
Toilet met troonzitting en hoog hangende stortbak. Dit toilet komt als replica het dichtstbij de antieke toiletten die meestal uitgevoerd waren met een toiletbril die op steunen rustte. De toiletten van Thomas Crapper kunnen geleverd worden in het wit of in het antique white, dat is een prachtige kleur off white die bijvoorbeeld erg goed bij oude tegels of oude witjes past of bij andere stukken antiek sanitari die maar heel zelden helemaal wit zijn.

Dit toilet wordt geleverd met een troonzitting van mahonie of van eikenhout. De stortbak is van lichtgewicht aluminium dat het uiterlijk van gietijzer heeft. De stortbak is afgewerkt met grondverf. Het toilet zelf is op de rand gedecoreerd.

Standaard is dit toilet uitgevoerd als PK model, afvoer naar de muur. Door middel van een 90 graden connector van porselein is het mogelijk een AO vloer afvoer te realiseren. Hiervoor dient de 90 graden connector apart te worden bijbesteld.


Aangegeven prijs is voor de complete set, inclusief toilet, valpijp, bril, stortbak, alle steunen en wc trekker..

Dit artikel dient altijd besteld te worden. Levertijd ca. 4 weken.